Đăng ký online
Trung tâm Ngoại Ngữ Tin Học Thời Đại Mới
Hotline:
028 3910 3811
Tìm kiếm
Tìm kiếm
Trang chủ
Giới thiệu
Chương trình đào tạo
Digital Marketing
Ngành kiến trúc
Thiết kế đồ họa
Phần mềm
Designer và trải nghiệm sáng tạo
Lịch
khai giảng
Kiến thức
Digital Marketing Knowledge
Kiến trúc - Nội thất
Thiết kế đồ họa
Góc tư vấn
Hành trình học viên IDC
Các mẹo hay
Đồ án
Tin tức
Tin chuyên ngành
Các mẹo hay
Thông báo
Ưu đãi
Việc làm
Liên hệ
Menu
Trang chủ
Giới thiệu
Chương trình đào tạo
Digital Marketing
Khóa học Digital Marketing chuyên nghiệp - Full-stack Digital Marketing
Khóa học SEO chuyên nghiệp thực chiến
Khóa học Content Creator Pro Sáng tạo nội dung chuyên nghiệp đa kênh
Khóa học Content Marketing (Lập kế hoạch, viết Content Writing & Copywriting)
Khóa học Video Marketing thực chiến
Khóa học TikTok thực chiến từ số 0
Khóa học Digital Marketing Foundation
Khóa học Facebook Marketing thực chiến
Khóa học quảng cáo Google Ads từ cơ bản đến nâng cao
Xem tất cả
Ngành kiến trúc
Họa viên kiến trúc cao cấp
Khóa học họa viên thiết kế nội thất
Họa viên kiến trúc 2D chuyên nghiệp
Sketchup + Vray Sketchup + Lumion
Phối cảnh kiến trúc chuyên nghiệp với 3DS Max + Vray Render + Corona Render
Khóa học Autocad 2D
Vẽ kĩ thuật
Xem tất cả
Thiết kế đồ họa
Khóa học Thiết kế đồ họa chuyên nghiệp
Thiết kế đồ họa nâng cao
Kỹ thuật thiết kế đồ họa
Kỹ thuật thiết kế đồ họa 2D
Khóa học Design cho Marketer
Kỹ năng đồ họa (Photoshop & Illustrator)
Thiết kế chuyên nghiệp với Photoshop
Xem tất cả
Phần mềm
Thiết kế chuyên nghiệp với Photoshop
Khóa học thiết kế với Illustrator
Thiết kế và dàn trang với Indesign
Khóa học Autocad 2D
3D Studio Max
Sketchup + Vray Sketchup + Lumion
Thiết kế với Corel Draw
Xem tất cả
Lịch khai giảng
Đồ án
Kiến thức
Digital Marketing Knowledge
Digital Marketing
Social Media
Content Marketing
SEO Website
Kiến trúc - Nội thất
Thiết kế đồ họa
Hành trình học viên IDC
Góc tư vấn
Các mẹo hay
Tin tức
Ưu đãi
Thông báo
Việc làm
Liên hệ
Trang chủ
Đồ án
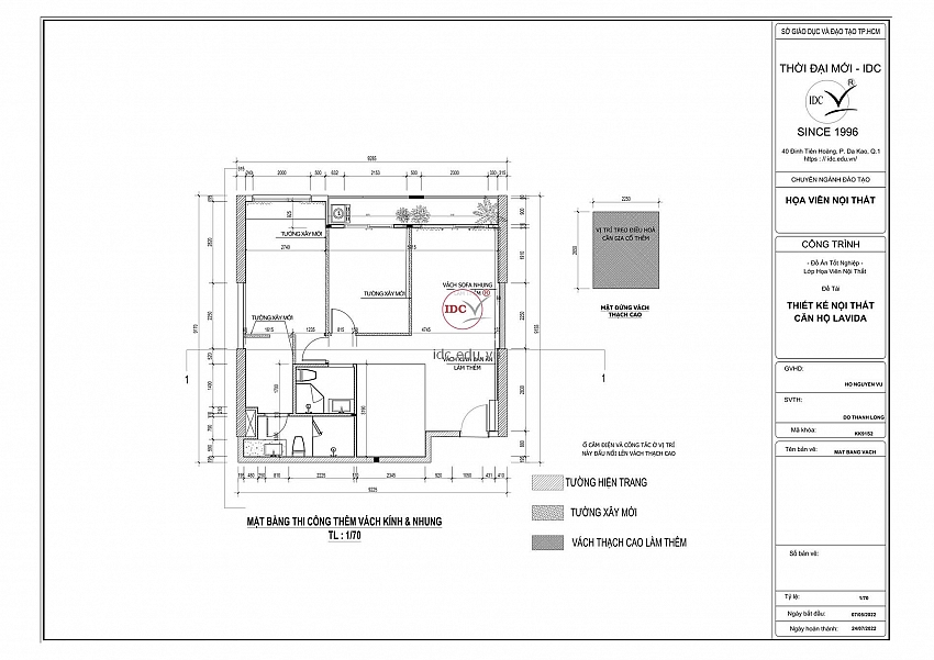
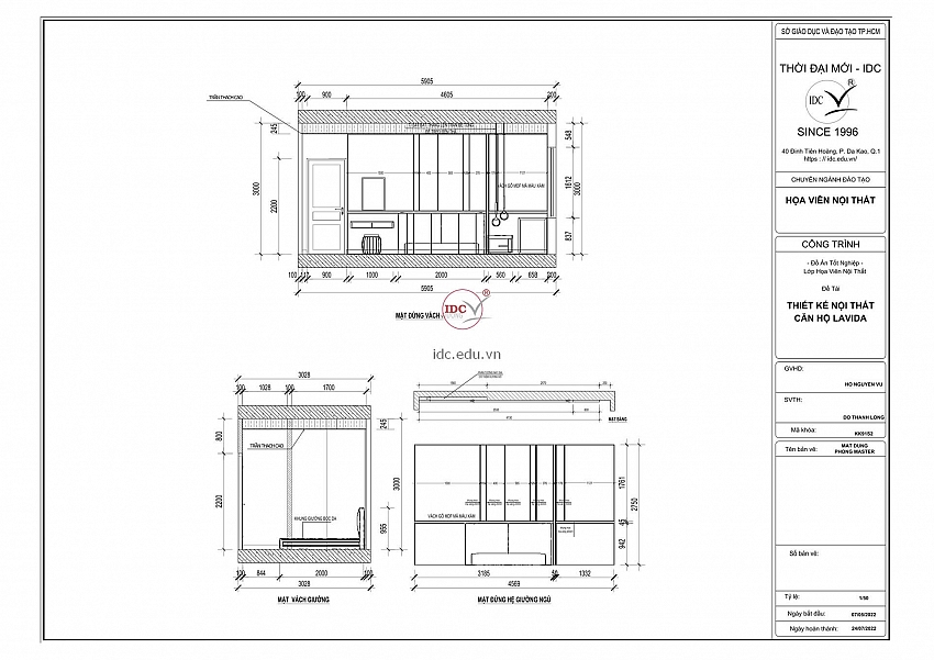
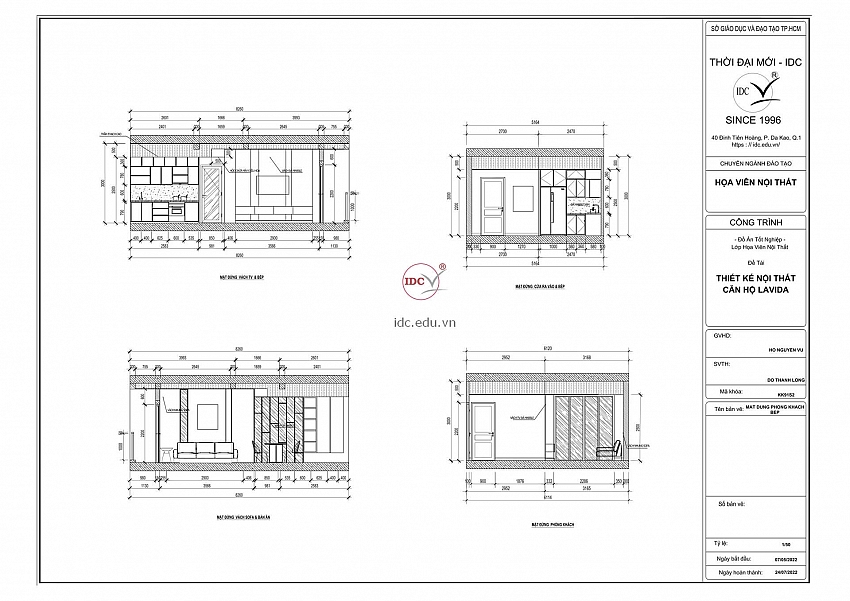
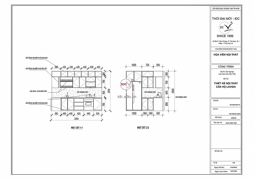
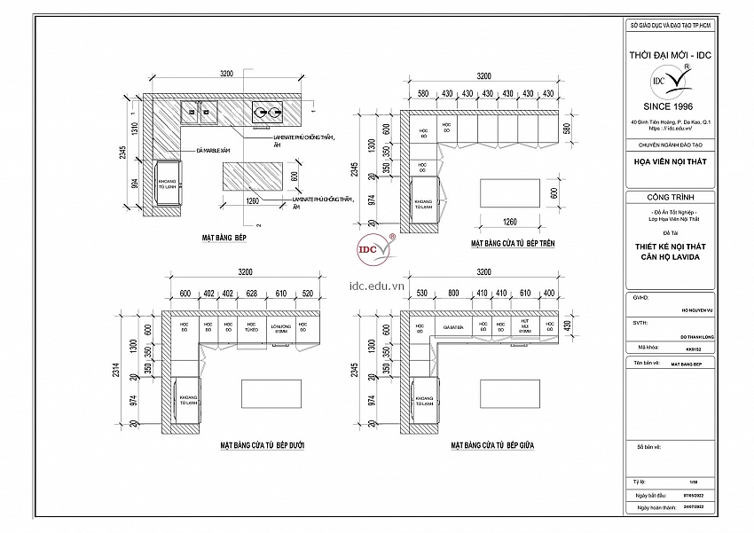
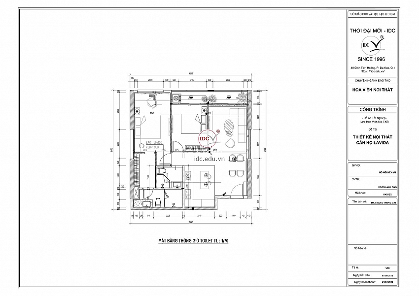
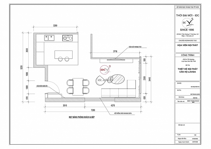
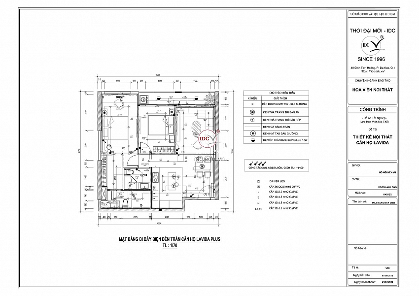
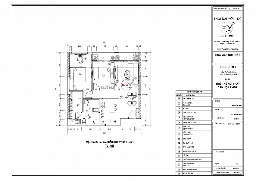
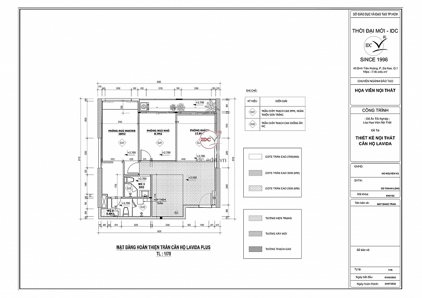
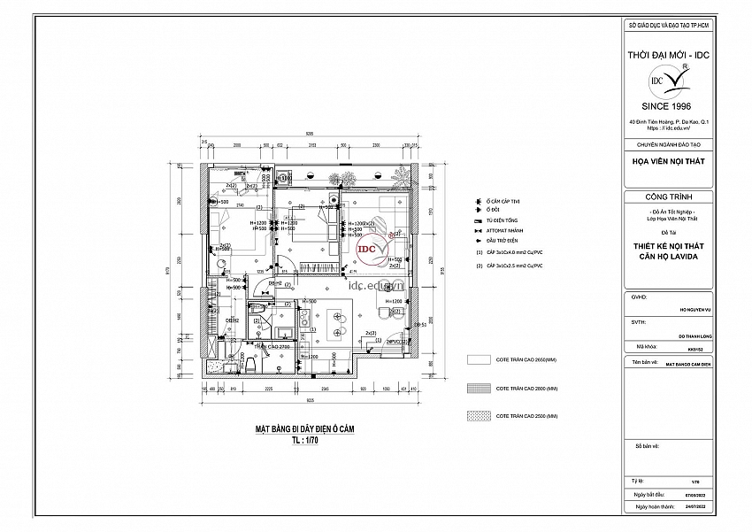
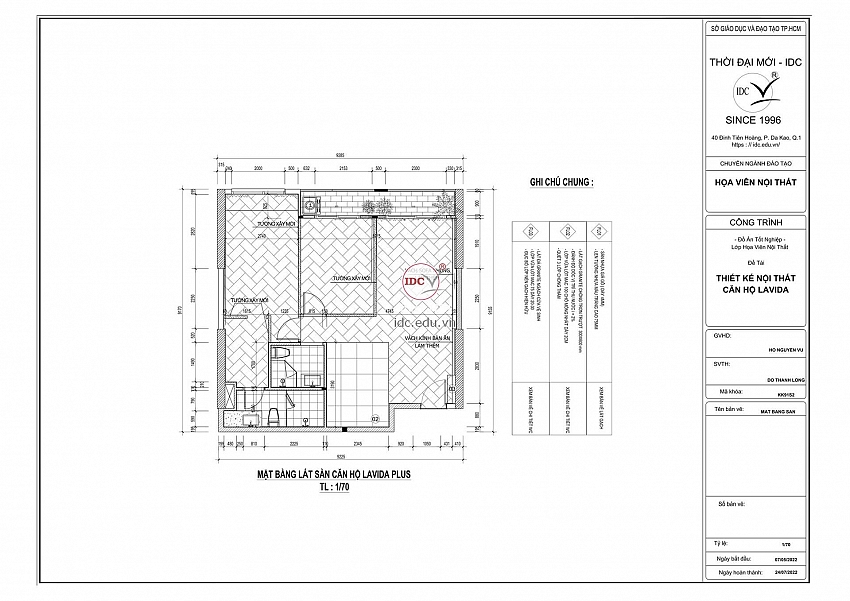
Đồ án thiết kế nội thất - HV Đỗ Thành Long - KK91